京浜東北線,売買,川口の賃貸、売買不動産なら、佐一建設へ!

  • 048-254-7721
  • 9:00~20:00(事務関係~18:30) 水曜定休日

沿線を選択

■ご希望の駅をお選びください。(複数選択が可能です。)

条件を指定

■ご希望の条件をお選び下さい。(複数選択が可能です。)

物件種別
画像有無
価格
間取り
面積(専有・建物)
土地面積
駅徒歩
築年数
 ~
こだわり条件
人気のこだわり条件
立地
位置・フロア
間取り
特徴・設備
管理・セキュリティ
回線
周辺環境

京浜東北線  【売買】戸建(沿線)

物件を並べ替え

    降順で並び替え中 新着 | 昇順で並び替え 価格 | 昇順で並び替え 築年月 | 昇順で並び替え 面積(専有・建物) | 昇順で並び替え 土地 | 昇順で並び替え 交通 | 昇順で並び替え 所在地
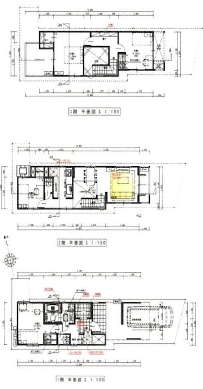
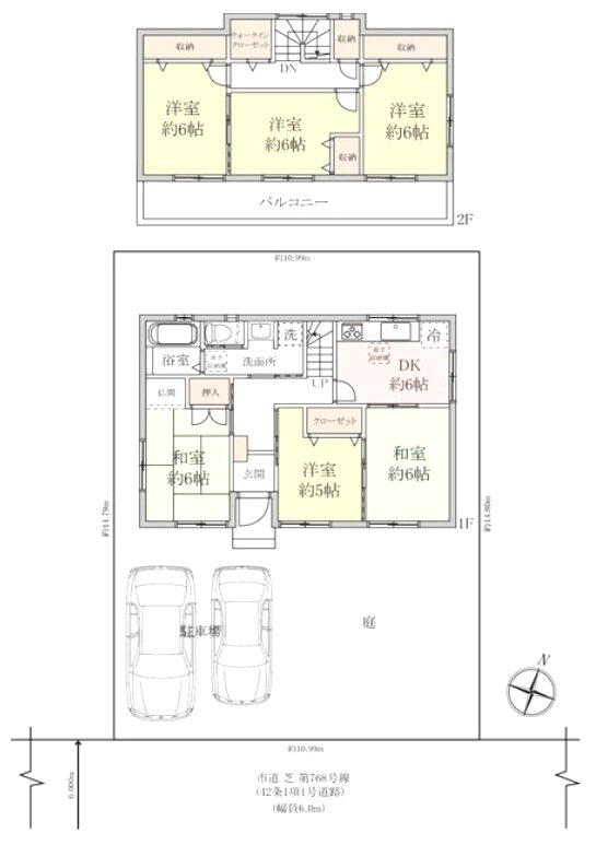
  • ※代表的なお部屋の写真と物件情報になります。
  •    タイプによっては一部仕様・眺望等が異なる場合があります。
  • ※お部屋により現況と異なる場合は現況を優先いたします。
Copyright  佐一建設株式会社  All rights reserved